23,400 m²
Izmir Metropolitan Municipality
Balkar Engineering
Proje Isı
Onmuş Electric
Praxis Landscape
Ayşegül Altınörs Çırak
Türkçe için: İzmir Büyükşehir Belediye Binası
An Urban Interface at the Intersection of Historical and Modernist Layers
Located in the heart of Izmir at Konak Square, the Izmir Metropolitan Municipality New Service Building is designed by Alper Derinbogaz, with project completion targeted for 2026. Conceived to redefine the place of the demolished former municipal building within the urban memory, the project aims to establish a dialogue between 19th-century historical monuments, 20th-century modernist heritage, and the contemporary public landscape. With its transparent facade, inner courtyard configuration, and public terraces, the structure spatially expresses the municipality’s democratic management approach while providing a continuous pedestrian flow between the square and the coastline.
Urban Context and Historical Continuity
The new building follows the traces of the former structure, which defined Konak Square but left a void in the skyline upon its demolition. The design engages with its multi-layered context on three distinct levels: the 19th-century historical texture represented by the Clock Tower and Yalı Mosque; the 20th-century modernist axis formed by the demolished building, SSK Blocks, and the Central Bank; and the existing contemporary landscape of the square. The building positions itself not as an isolated object, but as a new link in this historical continuity.
Facade Design and Massing
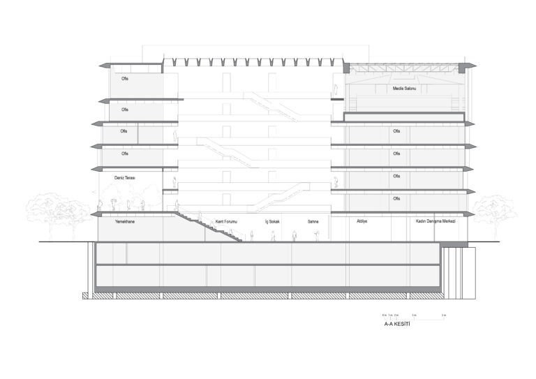
The facade modulation references the geometric order of the old building and the rhythmic character of the modernist axis extending along Cumhuriyet Boulevard. This approach transforms traces of the past through a contemporary aesthetic, ensuring continuity in urban memory. The massing is organized with a horizontal character to avoid overpowering the existing historical structures. Notably, the building sets back 10 meters starting from the 5th floor, displaying a respectful stance toward the Clock Tower while creating a spacious urban terrace.
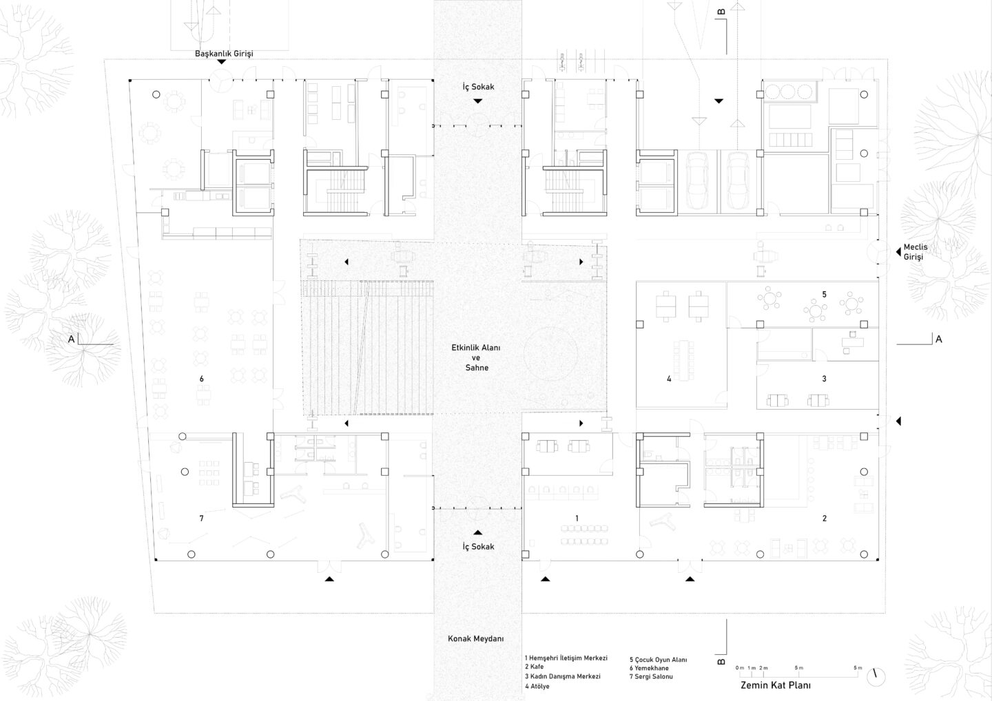
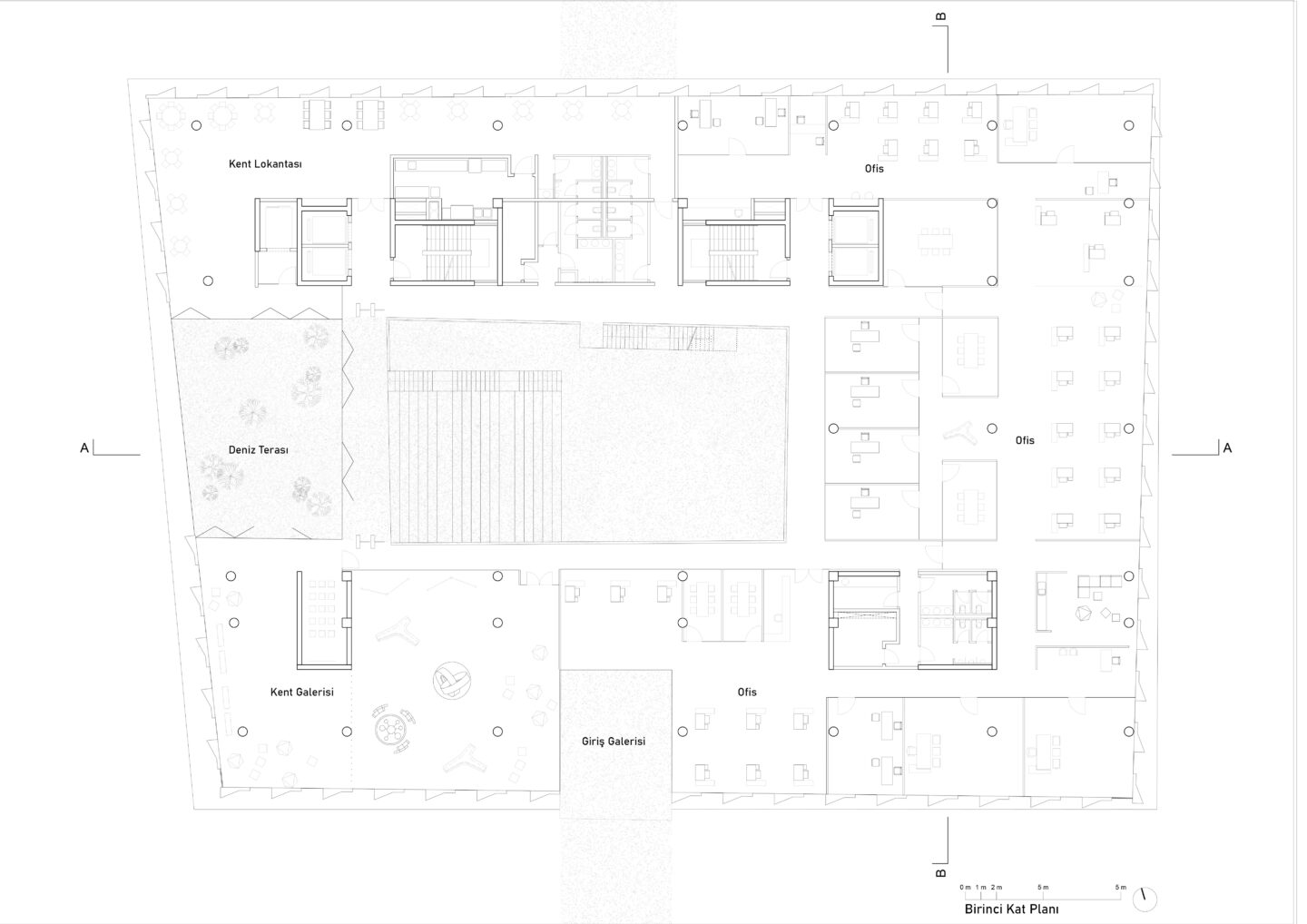
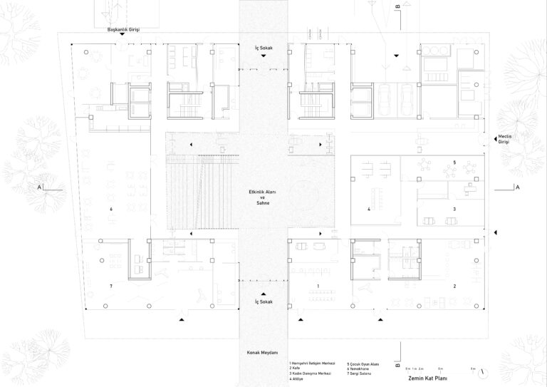
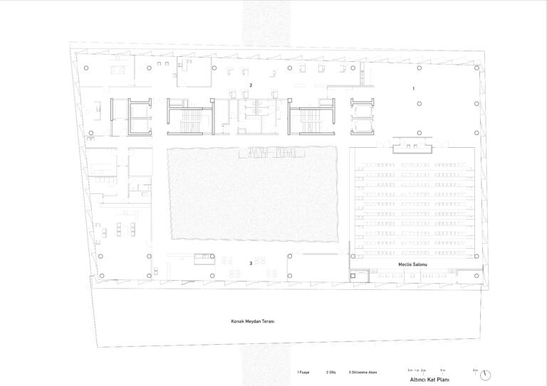
Public Permeability and Interior Organization
The ground floor functions as a gateway between Konak Square and Mücibur Rahman Street. An inner courtyard facilitates public life within the building through functions such as a city bookstore, exhibition hall, café, and citizens’ communication center. An “Art Street” and a grand staircase located within the courtyard lead visitors to the City Terrace on the first floor. Office floors are organized around a central gallery void, which provides spatial depth and strengthens visual communication between levels.
Transparency and Symbolic Functions
The building’s transparent glass facade and colonnaded structure highlight the municipality’s principles of transparency and democracy. The Council Chamber, located on the 5th and 6th floors at the corner facing Konak Square and Cumhuriyet Boulevard, serves as the most distinct symbol of this approach with its transparent configuration visible from the exterior. The Mayor’s office is located on the 6th floor, while parking and technical volumes are resolved in the basement levels.
Sustainability and Climatization Strategies
The project integrates passive and active systems suitable for Izmir’s climate data. Gallery voids and roof-integrated hatches support natural ventilation by creating a “chimney effect.” Rainwater harvesting systems, grey water usage, and roof-mounted solar panels reduce the building’s ecological footprint. High-performance reflective glass used on the facade minimizes internal heat load while maximizing daylight penetration.









